Saratoga Modular Homes
Custom Modular Homes – Upstate NY
Skip to content
  • Home
  • Gallery
    • Virtual Tours
    • Exterior photos
    • Interior photos
    • Watch Videos
  • Plan Search
    • Modular Ranch home plans
      • PBS Ranch Plans
      • Excel Generation Ranch Series
        • Afton Villa
        • Bainbridge
        • Buttonwood
        • Cadwell
        • Centralia
        • Chesterbrook
        • Cumberland
        • Deerwood
        • Dillworth
        • Edgemont
        • Faulkner
        • Fenwick
        • Geneva
        • Greenwood
        • Jamison
        • Kenmare
        • Linden
        • Minerva
        • Mont Alto
        • Norwood
        • Oneida
        • Providence
        • Randolph
        • Rockefeller
        • Sandusky
        • Shenandoah
        • Tanner Ridge
        • Valencia
        • Villa Maria
        • Wallingford
      • Apex Alpine Ranch Plans
      • Apex Classic Ranch Plans
      • Apex Designer Ranch Plans
      • Apex Value Ranch Plans
    • Modular 2-story Home Plans
      • PBS 2-story plans
      • Apex Alpine 2-Story Plans
      • Apex Classic 2-Story Plans
      • Apex Designer 2-story Plans
      • Excel Generation 2-story plans
        • Cadet
        • Devlyn
        • Gracin
        • Hickory
        • Richards
        • Sandstone
        • Seaview
        • Stiles
        • Sycamore
        • Tidewater
    • Modular Chalet and Vacation Home Plans
      • Apex Chalet Home Plans
      • Blackstone
      • Cedarville
      • Oyster Cove
      • PBS Vacation Home Plans
      • Riverside
    • Modular Log Home Plans
      • Brook View A
      • Brook View B
      • Brook View C
      • Cabin A
      • Cabin B
      • Cabin C
      • Cabin D
      • Cabin View Ranch
      • Canyon View A
      • Canyon View B
      • Canyon View C
      • Canyon View D
      • Canyon View E
      • Canyon View F
      • Cedar Ridge A
      • Cedar Ridge B
      • Cedar Ridge C
      • Cedar Ridge D
      • Lake View A
      • Lake View B
      • Mountain View
      • Oak Ridge A
      • Oak Ridge B
      • Pine Ridge A
      • Pine Ridge B
      • Pine Ridge C
      • Timber Ridge Chalet
      • Timber Ridge Ranch
    • Modular Cape Home Plans
      • Apex Alpine Cape Plans
      • Apex Classic Cape Plans
      • PBS Cape Plans
    • Modular Multi-Family Home Plans
      • PBS Multi Family Plans
    • Commercial Building Plans
  • About Modular
    • Why Modular?
    • The Building Process
    • Green Building and Modular Homes
    • Energy Star Modular Homes
  • Design
    • Kitchen Design
    • Universal Design / Aging in Place
  • Resources
    • Construction Management
    • Disaster Recovery
    • Financing
    • Insurance
    • Need Land?
  • Special Promotions
    • Wholesale Pricing
  • News and Events
    • In the News
    • Saratoga Modular Blog
  • About Us
    • Client Testimonials
    • Why Saratoga Modular?
    • Modular Homes in Saratoga County NY
    • Modular Homes in Albany County NY
    • Modular Homes in Rensselaer County NY
    • Modular Homes in Schenectady County NY
    • Modular Homes at Lake George NY and in the Adirondack Park
    • Modular Homes at the Great Sacandaga Lake
    • Modular Homes in Warren County NY
    • Modular Homes in Fulton County NY
    • Modular Homes in Washington County NY
    • Modular Homes in Montgomery County NY
    • Modular Homes in Schoharie County NY
    • Modular Homes in Essex County NY
    • Modular Homes in Hamilton County NY
    • Modular Homes in Herkimer County NY
    • Modular Homes in Oneida County NY
    • Modular Homes in Otsego County NY
    • Modular Homes at Oneida Lake NY
  • Contact Us
    • Quote My Home Now!
    • Tell Me More

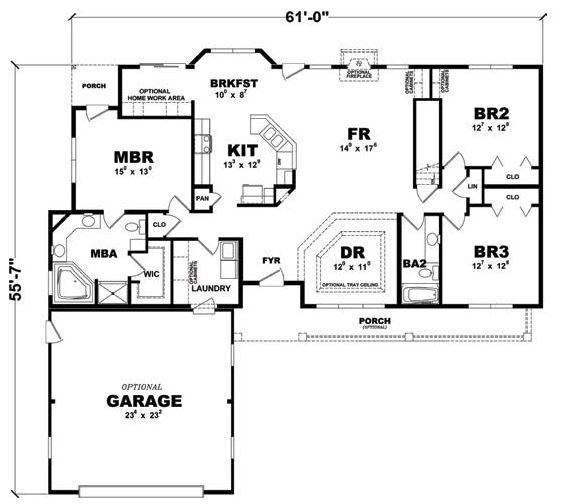
Sandusky

1,953 Square Feet
3 Bedrooms
2 Baths

Sandusky

Sandusky

Share this:

  • Share on Facebook (Opens in new window) Facebook
  • Share on X (Opens in new window) X
  • Email a link to a friend (Opens in new window) Email
  • More
  • Share on Reddit (Opens in new window) Reddit
  • Print (Opens in new window) Print
Like Loading...
  • Saratoga Springs Main Office

    570 Maple Avenue (Route 9)
    Saratoga Springs, NY 12866
    (518) 587-0100

    Hours Mon-Fri 8:30am – 5:00pm, evenings and weekends by appt

  • New Client Questionnaire

    What's important to YOU?
  • Helpful Links

    • Check out our virtual tours!
    • Information Request
    • Looking for Land?
    • Quote My Home Now!


  • Search our Website

  • Saratoga Modular Homes, LLC BBB Business Review
Saratoga Modular Homes
Blog at WordPress.com.
  • Subscribe Subscribed
    • Saratoga Modular Homes
    • Already have a WordPress.com account? Log in now.
    • Saratoga Modular Homes
    • Subscribe Subscribed
    • Sign up
    • Log in
    • Copy shortlink
    • Report this content
    • View post in Reader
    • Manage subscriptions
    • Collapse this bar
 

Loading Comments...
 

    %d