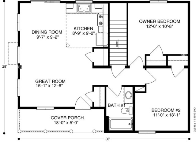
905 Square Feet
2 Bedroom
1 Bath
Building Footprint: 28 x 36


905 Square Feet
2 Bedroom
1 Bath
Building Footprint: 28 x 36



570 Maple Avenue (Route 9)
Saratoga Springs, NY 12866
(518) 587-0100
Hours Mon-Fri 8:30am – 5:00pm, evenings and weekends by appt
